Chân Ngắn Lavabo INAX L-297VC
960.000 ₫ Giá gốc là: 960.000 ₫.829.000 ₫Giá hiện tại là: 829.000 ₫.
L-297V/L-297VC là mẫu chậu INAX treo tường kèm chân ngắn được đông đảo khách hàng yêu thích và lựa chọn lắp đặt cho không gian gian phòng vệ sinh của gia đình mình. Nhờ kiểu dáng thiết kế sang trọng, kích thước lớn tạo cảm giác thoải mái trong quá trình sử dụng.
Đặc điểm cơ bản của chậu INAX 297V/L-297VC
Mã sản phẩm:
L-297V: lavabo treo tường
L-297VC: chân ngắn lavabo
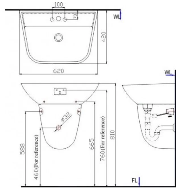
Kích thước chậu: W620 x D420 x H179 mm
Chất liệu sử dụng: Sứ cao cấp, bền màu với thời gian.
Không bao gồm phụ kiện (vòi, bộ xả…)
Thiết kế lòng chậu sâu giúp hạn chế bắn nước ra sàn và lỗ thoát tràn vô cùng tiện lợi.
Thành rộng tận dụng để nước rửa tay và các đồ dùng khác khi cần thiết.
Bề mặt chậu INAX 297 phủ lớp mem trơn láng, hạn chế bám bẩn, gây ố vàng và dễ dàng làm vệ sinh.
Ngoài chức năng làm bồn rửa thì thiết bị này còn có thể làm chậu giặt quần áo rất thuận tiện.
Kết hợp được với một số vòi rửa 1 lỗ như: LFV-21S, LFV-102S, LFV-1201S-1 giúp tăng tính thẩm mỹ và sự tối ưu cho không gian sử dụng.
Bản vẽ kỹ thuật bồn rửa mặt lavabo INAX 297V kèm chân L297VC
Đây là mẫu chậu lavabo có kiểu dáng thiết kế vuông vức, rộng phù hợp lắp cho các không gian nhà tắm diện tích vừa và lớn.
Sản phẩm có thể sử dụng bộ xả kiểu nhấn hoặc lật tùy vào sở thích và như cầu sử dụng.
Tham khảo hình dưới đây để nắm thêm thông tin chi tiết về kỹ thuật của L-297V/L-297VC nhé!

Nếu bạn còn có thắc mắc gì về đặc điểm sản phẩm cũng như tìm hiểu về các thiết bị vệ sinh INAX, hãy liên hệ ngay với Khánh Trang Home. Chúng tôi là nhà phân phối số 1 của thương hiệu tại Việt Nam. Địa chỉ liên hệ để được hỗ trợ và mua hàng
➤ Khu vực phía nam:
Số 2, Lương Định Của, Pường Bình An, Quận 2, TP.HCM – Hotline: 098.6666.516 – 0934.36.36.26
DP23, Dragon Parc 1, xã Phước Kiển, huyện Nhà Bè, Hồ Chí Minh. Hotline 096.7777.516
➤ Khu vực phía bắc:
Số 95 Phạm Văn Đồng, Mai Dịch, Cầu Giấy, Hà Nội – Hotline: 089.8888.516
Không có bình luận nào
Bài viết về sản phẩm này
Bài viết đang được cập nhật.


















Chưa có đánh giá nào.