Bồn tắm TOTO là sản phẩm mang đến cho người dùng sự trải nghiệm và thư giãn tuyệt đối sau 1 ngày làm việc vất vả. Bồn tắm xây TOTO PAY1510HV#W/TVBF411 là sản phẩm được nhiều gia đình lựa chọn để hoàn thiện không gian phòng tắm gia đình và giúp các thành viên thư giãn, tái tạo năng lượng sau 1 ngày dài lao động.
Đặc điểm nổi bật bồn tắm xây TOTO PAY1510HV#W/TVBF411
- Bồn tắm TOTO PAY1510HV#W/TVBF411 thiết kế sang trọng với độ sâu phù hợp, bề mặt chống trơn trượt và có điểm tựa đầu thư giãn và sảng khoái, giúp bạn tận hưởng sau mỗi ngày làm việc mệt mỏi và vất vả.
- Sản phẩm là loại bồn tắm nhựa có tay vịn thiết kế 2 bên. Các dòng sản phẩm bồn tắm thương hiệu thiết bị phòng tắm TOTO với kiểu dáng sang trọng thanh lịch mang đến một không gian riêng tư tiện nghi, hoàn hảo. Không những thế, còn là nơi thư giãn và thiền định.
Thông số kỹ thuật bồn tắm xây TOTO PAY1510HV#W/TVBF411
- Mã sản phẩm : PAY1510HV#W/TVBF411
- Tên sản phẩm : Bồn tắm nhựa TOTO PAY1510HV#W/TVBF411
- Thương hiệu: TOTO
- Loại bồn tắm : Bồn tắm nhựa có tay vịn
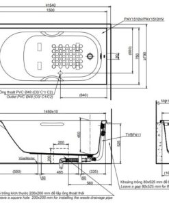
- Dung tích : 205L
- Kích thước : 1500 x 750 x 558mm
- Chất liệu : Nhựa acrylic
- Màu sắc : Màu trắng
- Bao gồm bộ xả nhấn kèm ống thải bồn tắm TVBF411

















Chưa có đánh giá nào.