Bồn Cầu TOTO CS300DRE2#W 2 Khối Nắp Rửa Cơ TCW07S
6.780.000 ₫ Giá gốc là: 6.780.000 ₫.5.694.150 ₫Giá hiện tại là: 5.694.150 ₫.
TÀI LIỆU MÔ TẢ SẢN PHẨM
THÔNG TIN MÔ TẢ SẢN PHẨM
Bồn cầu ToTo CS300DRE2 là loại bàn cầu 2 khối đi kèm với nắp rửa cơ sang trọng của hãng ToTo thiết bị vệ sinh. Hôm nay siêu thị thiết bị vệ sinh Khánh Trang Home chúng tôi sẽ cùng bạn đi tìm hiểu về sản phẩm bàn cầu đẳng cấp này nhé.
Đặc điểm của bồn cầu TOTO CS300DRE2 nắp rửa cơ
Tên sản phẩm: Bồn cầu TOTO CS300DRE2 Hai Khối Nắp Êm, Bồn cầu TOTO hai khối nắp rửa Eco-washer TCW07S
Hệ thống xả: Siphon, Xả nhấn 2 chế độ 4,8 lít cho xả đại và 3 lít nước cho xả tiểu
Thiết kế: Thân dài, vành kín giúp cho chị em dễ dàng vệ sinh hằng ngày
Tâm xả: 305mm
Kích thước: 693x451x763 mm
Áp lực nước: 0.05MPa~0.75MPa
Màu sắc: Màu trắng
Bao gồm van khóa và gioăng đế. Không cần dùng điện và dễ dàng sử dụng
Phù hợp lắp đặt với nắp rửa điện tử WASHLET (tùy chọn)
Xem thêm các loại bệt cầu ToTo khác tại: https://old.old.old.khanhtranghome.com/bon-cau-toto
Bàn cầu TOTO CS300DRE2 gồm có
Thân cầu: C300R – Xuất xứ: Việt Nam
Két nước: S300D – Xuất xứ: Việt Nam
Nắp rửa cơ TCW07S (E2) – Xuất xứ: Inđônêxia
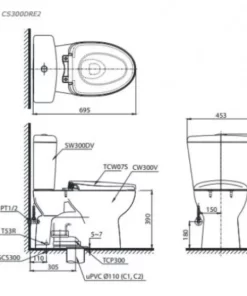
Sau đây là bản vẽ kỹ thuật của loại bàn cầu này giúp bạn có thể dễ dàng lắp đặt ngay tại nhà

Nếu bạn đang có thắc mắc về sản phẩm cũng như đang muốn mua các sản phẩm chính hãng ToTo.
Các bạn có thể liên hệ ngay với siêu thị thiết bị vệ sinh Khánh Trang Home chúng tôi qua hotline 0934.36.36.26 or 098.6666.516
Khánh Trang Home – đại lý cấp 1 thiết bị vệ sinh ToTo ủy quyền chính thức tại thị trường HCM.
Địa chỉ 5A đường số 5, Kp4, P An Phú, quận 2, HCM
Không có bình luận nào
Bài viết về sản phẩm này
Bài viết đang được cập nhật.



















Chưa có đánh giá nào.