Ra đời từ năm 1980, WASHLET đã đem đến sự tiện lợi, thoải mái và sạch sẽ với thiết kế hoàn hảo nhất cho toilet nhà bạn. Trải nghiệm WASHLET – Trải nghiệm phong cách vệ sinh mới. Bộ sản phẩm bồn cầu TOTO nắp điện tử 2 khối CS320PDRW4 sẽ khiến bạn không thể bỏ qua bởi những mẫu thiết kế đẹp được ứng dụng nhiều tính năng mới, hiện đại với nắp điện tử TCF4731A nhiều tính năng tiên tiến mang lại cho phòng tắm nhà bạn không chỉ sang trọng mà còn tiện nghi hiện đại.
Đặc điểm nổi bật của bồn cầu 2 khối CS320PDRW4
- Bồn cầu TOTO CS320PDRW4 với thiết kế hiện đại, sang trọng, và tinh gọn chắc chắn sẽ đem lại sự mới mẻ trong căn nhà vệ sinh của bạn.
- Hệ thống xả Wash down siêu mạnh và tiết kiệm nước
- Nắp đóng/ mở tự động
- Công nghệ nước điện phân khử khuẩn Ewater+ (Phun tráng lòng bàn cầu và vệ sinh vòi rửa)
- Vòi rửa massage đa chức năng, rửa sạch, êm ái nhờ việc TOTO đã đưa bọt khí vào giọt nước. Vòi rửa sẽ tự động vệ sinh vòi rửa trước và sau khi sử dụng, đảm bảo vòi luôn được vệ sinh sạch sẽ.
- Ngoài ra nắp bồn cầu TOTO TCF4731A còn được trang bị thêm các tính năng: Sấy khô, khử mùi, sưởi ấm nắp ngồi, khiến cho mùa đông khi bạn sử dụng sản phẩm không còn lạnh và không gian phòng tắm không còn mùi hôi khó chịu.
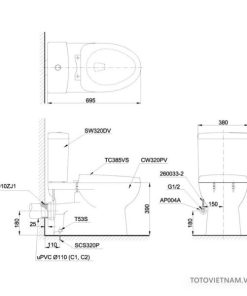
Thông số kỹ thuật bồn cầu 2 khối nắp điện tử CS320PDRW4
- Mã sản phẩm: CS320PDRW4
- Hãng sản xuất: TOTO
- Chủng loại: Bồn cầu 2 khối, nắp rửa Washlet
- Tâm xả: 180mm, thoát ngang
- Lượng nước xả: 4.8L/3L
- Hệ thống xả: Wash down
- Nắp rửa điện tử TCF4731A(220V)
- Thiết kế: Thân dài, bán kín
- Áp lực nước: 0.05MPa ~ 0.75MPa
- Nguồn điện: 220V, 50/60Hz
- Xuất xứ: Việt Nam – Malaysia
- Màu sắc: Trắng (white)
- Bảo hành: 2 năm
* Sản phẩm bao gồm cút nối tường, van dừng

















Chưa có đánh giá nào.