Đặc điểm nổi bật của bồn cầu 1 khối MS688E2
- Bồn cầu được thiết kế thân dài và kín giúp dễ dàng vệ sinh sản phẩm, tiết kiệm tối đa thời gian vệ sinh.
- Công nghệ men sứ chống dính, chống bám bẩn CEFIONTECT
- Hệ thống xả xoáy Tornado siêu mạnh, siêu êm, tiết kiệm nước.
- Nắp rửa TCW07S đóng êm kèm 1 vòi rửa nước lạnh thông minh.
- Chế độ đưa bọt khí vào giọt nước của vòi rửa, rửa sạch, êm ái, thân thiện với môi trường và người sử dụng, nhằm tiết kiệm tối đa việc sử dụng giấy vệ sinh.
Thông số kỹ thuật bồn cầu TOTO MS688E2
- Mã sản phẩm: MS688E2
- Hãng sản xuất: TOTO
- Chủng loại: Bồn cầu 1 khối, nắp rửa lạnh
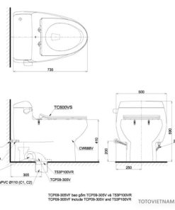
- Tâm xả: 305mm
- Lượng nước xả: 6L
- Hệ thống xả: Tornado
- Nắp rửa Eco washer TCW07S
- Thiết kế: Thân dài, kín
- Áp lực nước: 0.05MPa ~ 0.75MPa
- Xuất xứ: Việt Nam – Malaysia
- Màu sắc: Trắng (white)
- Bảo hành: 2 năm

















Chưa có đánh giá nào.