Chậu Rửa Lavabo INAX L-285V/L-288VD Kèm Chân Dài Treo Tường
1.480.000 ₫ Giá gốc là: 1.480.000 ₫.1.300.000 ₫Giá hiện tại là: 1.300.000 ₫.
Chậu treo tường INAX L-285V/L-288VD kèm chân dài là một sản phẩm đến từ thương hiệu thiết bị vệ sinh hàng đầu Nhật Bản, được khá nhiều khách hàng yêu thích và tin dùng. Mẫu bồn rửa này có gì đặc biệt? Hôm nay hãy cùng chúng tôi đi tìm hiểu qua bài viết sau nhé!
Đặc điểm nổi bật của chậu INAX 285 kèm chân dài L-288VD
Mã sản phẩm:
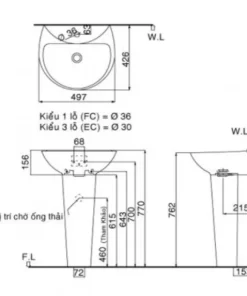
-L-285V: lavabo treo tường
-L-288VD: chân dài
Kích thước (D x R x C): 497 x 426 x 770 mm
Bề mặt hoàn thiện: Màu trắng sáng bóng
L-285VEC : Kiểu 3 lỗ
L-285VFC : Kiểu 1 lỗ
Không bao gồm phụ kiện ( vòi, bộ xả…)
Được làm từ chất liệu sứ có độ bền cao, đảm bảo an toàn trong quá trình sử dụng.
Bên ngoài phủ lớp men chống dính, hạn chế bám bẩn giúp công việc vệ sinh hàng ngày dễ dàng hơn.
Lòng sâu và rộng vô cùng tiện lợi, tạo cho người dùng sự thoải mái trong quá trình sử dụng.
Mẫu INAX 285 này có thể kết hợp với một số mẫu vòi như LFV-12A, LFV-2012S, LFV-1001S giúp tăng tính đồng độ cho không gian nhà tắm.
Xem thêm các bồn rửa khác tại: https://old.old.old.khanhtranghome.com/chau-rua-lavabo-inax
Bản vẽ kỹ thuật của chậu rửa inax 285V/L-288VD
Tham khảo bản vẽ kỹ thuật của sản phẩm này hình dưới đây để nắm thêm thông tin trước khi tiến hành việc lắp đặt thiết bị tại nhà nhé!

Công ty Khánh Trang Home là đại lý chính thức và ủy quyền lớn của nhiều thương hiệu thiết bị vệ sinh tại Việt Nam như INAX, TOTO, Ceaser, American Standard…. Chúng tôi luôn cung cấp các sản phẩm chính hãng 100%, mẫu mã đa dạng với giá tốt nhất. Bạn hoàn toàn có thể yên tâm khi mua hàng tại hệ thống showroom. Ngoài ra, đội ngũ nhân viên tư vấn giàu kinh nghiệm sẽ hỗ trợ nhiệt tình khách hàng trong lựa chọn thiết bị phù hợp với nhu cầu sử dụng của gia đình.
Bạn có thể liên ngay với chúng tôi qua thông tin địa chỉ sau để được hỗ trợ và mua hàng:
➤ Khu vực miền nam:
Số 2, Lương Định Của, Pường Bình An, Quận 2, TP.HCM – Hotline: 098.6666.516 – 0934.36.36.26
DP23, Dragon Parc 1, xã Phước Kiển, huyện Nhà Bè, Hồ Chí Minh. Hotline 096.7777.516
➤ Khu vực miền bắc: Số 95 Phạm Văn Đồng, Mai Dịch, Cầu Giấy, Hà Nội – Hotline: 089.8888.516
Không có bình luận nào
Bài viết về sản phẩm này
Bài viết đang được cập nhật.







 
				

 
				 
				 
				 
				 
				 
 
 
Chưa có đánh giá nào.