Các dòng sản phẩm bồn tắm TOTO với kiểu dáng sang trọng thanh lịch mang đến một không gian riêng tư tiện nghi, hoàn hảo. Bồn tắm chân yếm TOTO PAY1730V/TVBF411 là sản phẩm bồn tắm được nhiều khách hàng lựa chọn, điểm nhấn cho không gian phòng tắm sang trọng, mang đến trải nghiệm tắm và thư giãn, sảng khoái cho cả gia đình
Đặc điểm nổi bật bồn tắm xây TOTO PAY1730V/TBVF411
- Bồn tắm TOTO PAY1730V/TVBF411 thiết kế sang trọng với độ sâu phù hợp, bề mặt chống trơn trượt và có điểm tựa đầu thư giãn và sảng khoái, giúp bạn tận hưởng sau mỗi ngày làm việc mệt mỏi và vất vả.
- Sản phẩm là loại bồn tắm nhựa không có tay vịn. Các dòng sản phẩm bồn tắm thương hiệu TOTO với kiểu dáng sang trọng thanh lịch mang đến một không gian riêng tư tiện nghi, hoàn hảo. Không những thế, còn là nơi thư giãn và thiền định.
Thông số kỹ thuật bồn tắm xây TOTO PAY1730V/TBVF411
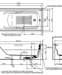
- Mã sản phẩm : PAY1730V/TVBF411
- Tên sản phẩm : Bồn tắm nhựa TOTO PAY1730V/TBVF411
- Loại bồn tắm : Bồn tắm nhựa không có tay vịn
- Dung tích : 214L
- Kích thước : 1700 x 750 x 558mm
- Chất liệu : Nhựa acrylic
- Màu sắc : Màu trắng
- Bao gồm bộ xả nhấn kèm ống thải bồn tắm TBVF411

















Chưa có đánh giá nào.