Bồn tắm xây TOTO PAY1730HV/TBVF411 thuộc thương hiệu TOTO với kiểu dáng sang trọng thanh lịch mang đến một không gian riêng tư tiện nghi, hoàn hảo.
Đặc điểm nổi bật bồn tắm xây TOTO PAY1730HV/TBVF411
Bồn tắm TOTO PAY1730HV/TBVF411 thiết kế sang trọng với độ sâu phù hợp, bề mặt chống trơn trượt và có điểm tựa đầu thư giãn và sảng khoái, giúp bạn tận hưởng sau mỗi ngày làm việc mệt mỏi và vất vả.
Sản phẩm là loại bồn tắm nhựa có tay vịn thiết kế 2 bên. Các dòng sản phẩm bồn tắm TOTO với kiểu dáng sang trọng thanh lịch mang đến một không gian riêng tư tiện nghi, hoàn hảo. Không những thế, còn là nơi thư giãn và thiền định.
Thông số kỹ thuật bồn tắm xây TOTO PAY1730HV/TBVF411
- Mã sản phẩm : PAY1730HV/TBVF411
- Tên sản phẩm : Bồn tắm nhựa TOTO PAY1730HV/TBVF411
- Loại bồn tắm : Bồn tắm nhựa có tay vịn
- Dung tích : 214L
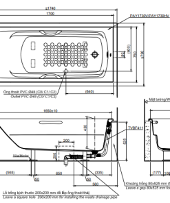
- Kích thước : 1700 x 750 x 558mm
- Chất liệu : Nhựa acrylic
- Màu sắc : Màu trắng
- Bao gồm bộ xả nhấn kèm ống thải bồn tắm TBVF411

















Chưa có đánh giá nào.